星空寶盒.3房2廳小坪客變汐止趙宅
本案是一個四口之家的幸福居所。年輕夫妻育有一子一女,希望打造一個貼近日常、也能陪伴孩子長大的家,因此在建案預售階段便購入此房,並於客變時期即開始整體設計規劃。
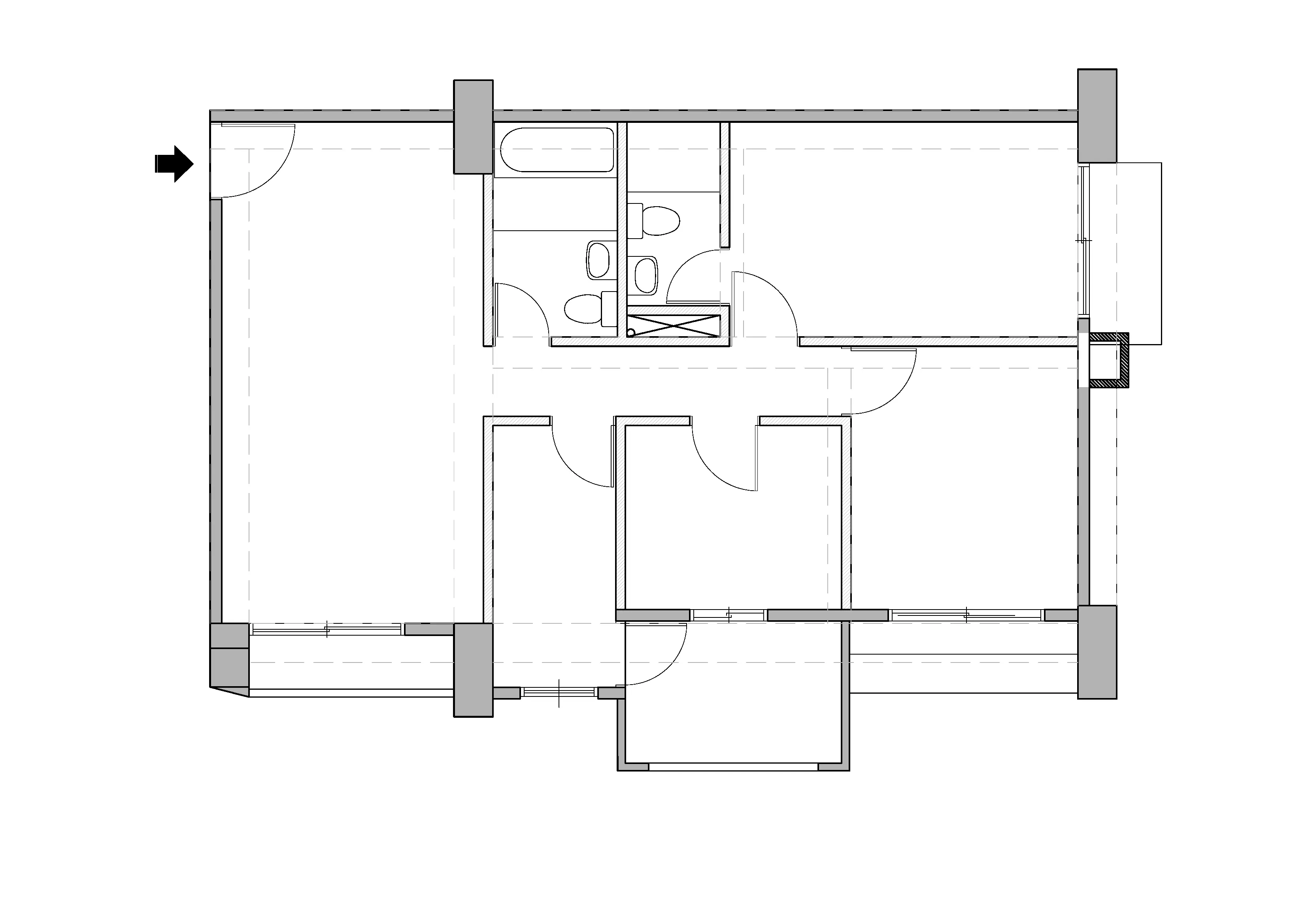
原始三房的坪數比例落差極大——大人小時候都經歷過的「房間不公平」難題,也成了屋主最在意的問題之一:為什麼他的房間比較大?為什麼她的收納比較多?這些細節,往往藏著孩子內心對「公平」的敏感。
為了避免兄妹倆重複上一代的空間分配困境,屋主夫妻在需求討論時提出的第一件事就是:
希望孩子的房間要平均、同樣舒適。
同時,女主人也希望能在廚房料理時,方便照看到孩子,讓親子互動不因空間阻隔而變得疏離。
因此,設計團隊在客變階段便針對隔間比例進行調整:
- 主臥部分空間讓給兒子房,規劃為書櫃與閱讀區。
- 女兒房向兒子房與廚房方向擴張,重新分配兩房坪數。
- 兄妹之間的實牆改為雙面櫃體,既做為隔間,也兼具收納與展示機能。
- 廚房牆面拆除,調整為開放式動線;工作檯面向客廳延伸,並以斜角設計使空間更開闊。
原格局

客變格局



以上的空間調整,不僅成功讓兩間孩子房的坪數達到均衡,也讓主臥、廚房與客廳在縮減後仍保持原有的使用機能與舒適行走尺度,整體動線更為流暢。
透過這些前期精準調整,家不只是容納生活,更成為一家人互動、陪伴與共同成長的場域。





設計重點
✔ 小坪數格局比例平衡分配,引入大量自然光
✔ 弱化建物本體巨大橫梁壓迫的問題,採用圓弧造型、暖色系方案(百合白+藤色)柔化線條
✔ 提升公區收納機能,妥善分隔戶外用品/居家用品
✔ 廚房優化,開放式導入自然流動
✔ 提升親子互動,增加安全可視範圍
柔化堅硬線條.導入圓弧語彙的家
在造型語彙上,設計師大量引入 「圓弧元素」。原本結構樑量體龐大、視覺略顯壓迫,因此透過跳色與弧形延伸的處理手法,將原先銳利的線條柔化。從窗簾盒開始的弧形語彙一路延伸至沙發背牆,使客餐廳形成一致且連貫的視覺節奏,讓空間氛圍更溫潤、流動。
色系選擇明亮清新中略帶暖調,全室油漆以帶有略黃的百合白油漆色調取代正白色,整體色彩理念強調自然、健康,避免過度加工,樑底和沙發背牆的跳色採用「藤色」,呼應木質調的主色,讓空間更加整體性,暖色系的環境可以提升光線的明亮感,讓空間與居住者的呼吸節奏保持一致。



玄關區.取用動線與物品尺寸的小空間精算
玄關落塵區規劃了一體成型的鞋櫃、外出藥品、鑰匙雜物收納區與通往儲藏室的隱藏門,所有抽屜深度與收納尺寸皆依照屋主一家人的使用習慣與鞋款尺寸精準計算,讓日常出入的動線更加俐落。
考量到全家熱愛戶外活動,落塵區旁設置了一間獨立儲藏室。進門後即可直接將腳踏車、露營裝備等戶外用品收納,不僅動線直覺,也有效減少泥土、灰塵外散至室內,維持公共區域的乾淨整潔。為了提高坪效並降低量體壓迫感,以捲簾取代實牆與門片,讓餐廳與儲藏室之間保有輕量且彈性的區隔方式。




儲藏室內部配置專屬腳踏車懸吊架與頂天立地五金層架(層架為屋主自購,設計師協助挑選與後續規劃),而在腳踏車的懸掛位置上,更進行了精密的尺寸推算:
懸掛高度、位置與深度皆需精準計算,讓儲藏室入口在向內推開時不會碰撞到腳踏車的門把;同時腳踏車不能掛得太深(會無法順利吊掛),也不能過於靠外(會卡到儲物層架與捲簾)。


最終透過細膩的尺度調整,使腳踏車在不佔用公共區域的前提下,也能以最滑順的動線完成放置與取用。
從日常雜物到露營裝備,所有物品都有妥善位置;整體動線俐落、收納一目了然,讓屋主的生活機能與使用習慣獲得最貼心的對應。
公區域.回歸陪伴與交流本質
客廳電視牆不設傳統電視,而改以投影布幕,並利用主牆大樑下方空間,作為大面書櫃,既滿足屋主大量閱讀的習慣,也讓孩子能在書香中長大;而當布幕放下時,全家便能在客廳共享電影時光,回歸娛樂需求,又能凝聚情感。



與客廳連結在一起的餐廳區則利用餐邊櫃增加收納機能,並預留插座平台區,可放置咖啡機、氣炸鍋、電磁爐,小坪數依然有良好的生活機能。

在家具的挑選上,打破了制式的高度規範,選擇了低餐桌與餐椅,讓孩子與大人共享同一視角,回歸到陪伴與交流的本質。

開放式廚房區.為身高量身訂製
一字型廚房動線滿足日常的簡單下廚需求,半隔間牆使整個公區在白天不開燈時更自然明亮。利用天花空間做不落地的收納櫃規劃,保留呼吸感,平時少用到的物品能妥善收納。

廚房檯面選用石英石,有別於人造石容易吃色的問題,石英石高硬度耐磨耐刮的特性,平時清潔保養容易,讓下廚更省心。


因應女屋主身高、常用的各類鍋具廚具等等,無論是備餐檯面、櫃體尺寸、抽屜高度皆經過反覆推算,在有限的空間中做最精準的規劃。

包含檯面斜角與對向的冰箱、冷凍櫃、洗碗機,打開時的方向及需要的空間,都要避免影響料理過程的取物動線,每一寸的規劃,都在搭配女屋主下廚的習慣中準確精算。



因應孩子的成長保留彈性.階段性規劃
收納並非一次到位,而是呼應孩子成長的「階段性需求」。隨著年齡不同,身形、物品量、生活習慣都會改變,因此設計以活動家具取代大量固定櫃體,讓空間能隨時間彈性調整,不被侷限。




客變後兩間小孩房相連,以雙面櫃設計作隔間,提供更完整的收納規劃。設計師更在系統衣櫃背貼隔音毯及吸音棉,增加隔音效果,避免小孩在休息、遊戲、寫作業時互相影響。


化解橫樑與管線衝突.找回女兒房的輕盈感
女兒房臥室原有的橫樑問題,不僅影響空間比例,也連帶限制了冷氣管線的規劃與整體美觀。建商在規劃冷氣室外機冷媒管線路徑時,因外牆側受橫樑位置限制,將外牆冷媒套管設置於大樑下方,導致管線孔洞高度偏低。
然而,室內管線勢必需由此孔洞引入,若為了修飾孔洞而將天花板或窗簾盒下釘至洞口高度,整體比例將低於 200 公分,容易產生壓迫感。

因此設計師改以與衣櫃同色系的系統板進行包覆,並透過緩和的圓弧天花修飾原本銳利的結構邊角,使線條自然延伸並銜接至收納櫃體,在視覺與機能之間取得平衡。

同時搭配層板作為視覺修飾與機能延伸,上方可擺放孩子喜愛的娃娃或物品,既提升使用彈性,也能保留天花板與窗簾盒的高度,讓女兒房在實用之餘仍維持舒適、開闊的空間感受。




自然、健康、永續理念貫徹全室
回到屋主重視的環保與健康永續理念,此案全面採用 F1 等級低甲醛材料:天花板角材選擇 F1 標準,系統櫃亦採用 F1 低甲醛板材,為孩子打造能安心呼吸、無負擔的生活環境。

屋主入住後,最驚喜的地方是光線表現,男屋主顯少開燈,喜歡單靠自然光就能享受客廳的靜謐。從收納到光影,設計師成功化解空間小、物件多的困難,讓家成為名副其實的「星空寶盒」,也因為這些設計細節,悄悄盛裝了更多的溫柔與陪伴。


